新耐震基準
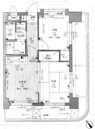
エクレール泉台 福岡県北九州市小倉北区

C.jpg)
物件価格:4,800,000円
リノベーション価格:4,964,169円
買築総額※:9,764,169円
※「買築プラン」でリノベーションした場合の総額目安です。








C.jpg)

-C.jpg)





C.jpg)

C.jpg)
