福柳木二丁目戸建 福岡県北九州市戸畑区


物件価格:5,900,000円
リノベーション価格:6,713,045円
買築総額※:12,613,045円
※「買築プラン」でリノベーションした場合の総額目安です。









C.jpg)

C.jpg)


戸建-外観-768x1024.jpg)
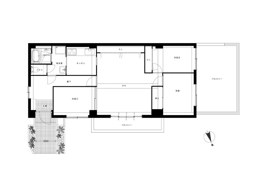
戸建-間取り.jpg)
